下管民宿营业房招租公告
发布日期: 2020/8/28阅读:次
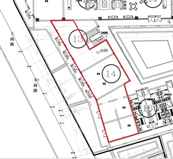
2020年下管供销合作社营业房招租工作开始,现就有关事项公告如下: 一、招租房产:营业房位于下管镇工商南路和人民路改造区块编号4#13#14#(详见示意图红线区域),一间营业房为一个标的,共14个标的。 二、招租形式:根据区域划分经营范围(详见示意图红线区域)、行业,采取公平、公开、公正的原则,采取明标暗投的形式向社会招租。现划定区域招租业态限定:副食品、百货、水果、服装、快递行业、农副产品、电器、美发美容、理疗按摩。 三、招租金额:本次公开招租最低限价金额为人民币7000元/间。 四、租赁期限:交付之日起2年 五、报名及投标时间: 报名时间:2020年8月28日上午9时—2020年8月31日下午3时止,逾期不再接受报名。 投标时间、地点:2020年8月31日下午3时,下管农贸市场二楼。报名者需交投标保证金每标5000元(一份保证金最多只能成交相邻两个标的,一个身份证最多只能缴纳一份保证金),并随带身份证复印件。 六、报名地点:下管供销合作社办公室(下管振新村委二楼),联系电话:15384134060 0575-82891046。 绍兴上虞管溪乡村旅游开发有限公司 下管供销合作社 2020年8月28日


下管工商路4#原下管茶厂正大门一层八间营

下管工商路13#14#移动公司对面一层六间营业房